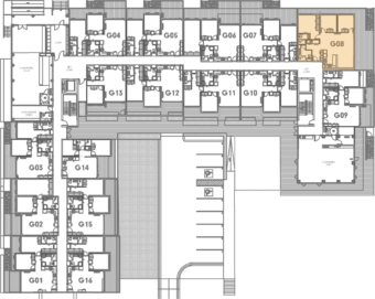
Onewa G08
Available
A ground level 3-bedroom apartment with open-plan living extending to wrap-around balcony
- Building Onewa
- Level G
- Type G3
- Internal 104.5 m²
- Terrace 53 m²
- Total 157.5 m²
- Beds 3
- Baths 2
- Price $935,000
- Storage Locker +$7,500
- Car Park On request
Similar apartments
| Apartment | Level | Type | Size | Beds | Baths | Price | Status |
|---|---|---|---|---|---|---|---|
| Onewa 110 | 1 | G2A | 125.85 m² | 3 | 2 | $920,000 | Available |
| Onewa 210 | 2 | G2A | 125.85 m² | 3 | 2 | $935,000 | Available |
| Onewa 310 | 3 | G2A | 125.85 m² | 3 | 2 | $955,000 | Available |
| Onewa 409 | 4 | G2A | 125.85 m² | 3 | 2 | $970,000 | Available |
Other 3 bedrooms
| Apartment | Level | Type | Size | Beds | Baths | Price | Status |
|---|---|---|---|---|---|---|---|
| Onewa 515 | 5 | M1 | 173.4 m² | 3 | 2 | $1,195,000 | Available |


























